Каталог
(0)
Наличие: В наличии Нет в наличии
Предзаказ

Стенд развал-схождения Hunter WA310/20LE-421DT2 мобильный

Не устраивает цена или характеристики? Сделаем скидку или подберем аналог! Цена с НДС.

Получить консультацию
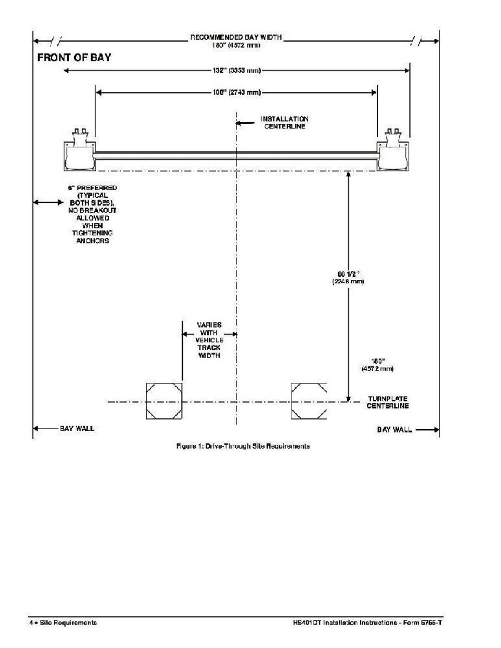
Кабинет мобильный экономичный; ОС Windows; WinAlign Elite, WebSpecs, Photo/Video опция; Монитор LCD 21.5" с креплением; Принтер цветной; Мульти-D, 4 камеры, сквозной проезд, мишени высокого разрешения, адаптеры колесные 10-24,5"; Круги поворотные.

О товаре Стенд развал-схождения Hunter WA310/20LE-421DT2 мобильный

Описание и характеристики

Кабинет мобильный экономичный; ОС Windows; WinAlign Elite, WebSpecs, Photo/Video опция; Монитор LCD 21.5" с креплением; Принтер цветной; Мульти-D, 4 камеры, сквозной проезд, мишени высокого разрешения, адаптеры колесные 10-24,5"; Круги поворотные. Состав стенда Компонент Описание 1. Датчики Hawkeye HS421DT2E Исполнение из 2 коротких колонн для организации сквозного проезда. Данное исполнение НЕ предназначено для использования совместно с подъемником. Возможна совместная работа с любым типом WA кабинетов. Используют Мульти-D технологию моделирования для получения точных измерений. 4 цифровые видеокамеры высокого разрешения непрерывно контролируют положение колесных мишеней в пространстве и обеспечивают мгновенную обработку получаемых данных и передачу результатов в консоль стенда. 4 мишени высокого разрешения: Обеспечивают больший угол видения по вертикали и горизонтали; Компактные и легкие; Имеют небьющиеся отражатели и ударопрочные корпуса; Не имеют электроники и не требуют калибровки. 4 самоцентрирующихся колесных адаптера с рабочим диапазоном от 10” до 24,5”. Примечание: Для обслуживания колесных дисков диаметром до 28” требуются расширители 20-1792-1. 4 кронштейна хранения колесных адаптеров с мишенями для монтажа на колонну, кабинет или стену (требуется комплект 20-2187-1), ножничный подъемник или стойки 4-х стоечного подъемника. Режимы измерений: «Базовая плоскость» - УУК автомобиля определяются относительно плоскости параллельной путям подъемника/ямы; «Текущая плоскость» - УУК автомобиля определяются относительно плоскости образуемой мишенями. Способы компенсации биений: Прокатывание – быстрая процедура с дополнительной функцией контроля грубых ошибок; Подъем осей – используется при невозможности или затруднении в выполнении прокатывания автомобиля или при регулировке «без колес». Мишени могут быть скомпенсированы в любом порядке. 2. Кабинет WA310E Мобильный экономичный с металлическим верхом (Поставляется в разобранном виде). Внешние громкоговорители - Позволяют использовать функцию SoundGuide (Звуковой Гид) и прослушивать видеоролики. В комплектацию входят: Фиксатор педали тормоза. Фиксатор рулевого колеса. Кронштейн хранения фиксаторов рулевого колеса и тормоза. 3. Монитор LCD 21.5”* Формат изображения 16: 9. На экране отображаются дополнительные функции широкоэкранной версии ПО WinAlign. Комплект крепления к кабинету включен. 4. Принтер* Цветной струйный. 5. Компьютер* с ПО WinAlign Элит В комплектацию входят: Стандартная конфигурация компьютера; Клавиатура с защитной плёнкой (рус./англ. язык); Мышь оптическая; 2 года бесплатных обновлений спецификаций автомобилей. Диски ПО WinAlign Элит установочные; Электронные ключи доступа; Доступ WebSpecs; DVD-Photo/Video опция; Руководство пользователя; Лицензия на использование ОС Microsoft Windows. ПО WinAlign имеет крупнейшую базу данных спецификаций автомобилей c возможностью ее пополнения через Интернет (WebSpecs) и множество запатентованных функций регулировки и повышения производительности: ExpressAlign® – Позволяет выполнять регулировку каждого автомобиля наиболее рационально. Анализирует полученные измерения и предлагает оптимальную последовательность действий с наименьшим количеством требуемых шагов. WinToe® – Гарантирует правильное положение рулевого колеса без повторных регулировок и использования фиксатора руля. Регулировка схождения осуществляется по диаграммам «рулевых тяг»!!! и может выполняться с вывешенной осью. База данных инструментов и регулировочных комплектов – Упрощает подбор необходимых для регулировки каждого автомобиля инструментов и комплектов и экономит требуемое для этого время. Виртуальный вид – Наглядно представляет УУК автомобиля на трехмерной модели в режиме реального времени. Fast caster/SAI – Позволяет получить данные по продольному, поперечному наклонам поворотного шкворня и прилежащему углу за одно измерение. CAMM® (Монитор перемещения рычагов подвески) – Обеспечивает быструю и эффективную регулировку подвески на двойных поперечных рычагах с регулировочными шайбами, двойными эксцентриками или пазами. Пошаговые иллюстрации позволяют сделать все с первого раза. Shim-Select® II – Быстро рассчитывает правильное положение шайбы переменной толщины, в зависимости от типа, для одновременной регулировки развала и схождения задних колес автомобиля. Не нужно обращаться к запутанным диаграммам и таблицам. Регулировка без колес – Ускоряет процесс регулировки в случаях с ограниченным или неудобным доступом к регулировкам с установленным колесом. Примечание: Требуется комплект адаптеров 20-1978-1. ABC® (Автоматический калькулятор втулок) – Определяет размер и положение втулки для одновременной регулировки развала и продольного наклона передних колес пикапов/фургонов без затрат времени на нулевую втулку. SBDA (Аудит кузов/подвеска) – Отображает положение кузова автомобиля относительно шасси для определения крена и необходимости кузовного ремонта. Примечание: Требуются мишени высоты посадки 20-2050-1. Измерение высоты посадки – Поддерживает автоматический ввод данных двумя способами: С помощью мишеней высоты посадки 20-2050-1 (высота отображается в реальном времени); С помощью электронного измерителя, встроенного в пульт ДУ. Измерение симметрии – Обеспечивает мгновенный доступ к данным по симметрии и смещению осей для определения необходимости выполнения кузовного ремонта или выявления факта восстановления после аварии. WinAlign Tuner ™ – Помогает выполнять настройку подвески автомобилей с модифицированной ходовой частью. Примечание: Требуется комплект ПО 20-2004-1. Дополнительно рекомендуются дистанционный индикатор 30-418-1-X-XF и Bump Steer комплект лебедки 20-2011-1. Видеобиблиотека – включает более 300 видеороликов, охватывающих все аспекты развал-схождения. Помогает при общении с клиентами, позволяет разобраться с необычными проблемами, делает механика более компетентным. Режим осмотра «Укажи и щелкни» – Позволяет, используя более 4000 фотографий и иллюстраций, упростить инспекцию подвески и рулевого управления автомобиля. Автоматическое распознавание вывешивания оси AVH (Расширенные данные по управляемости автомобиля) – Помогает обнаружить скрытые проблемы, позволяет получить данные, объясняющие поведение автомобиля на дороге, или спрогнозировать его поведение. Доступны следующие измерения: плечо обката, смещение кастера, угол/смещение центральной линии кузова, диаметр разворота по центрам пятен контакта или внешним кромкам, крен кузова в повороте, свес кузова и др. Примечание: Для большинства измерений требуются мишени высоты посадки 20-2050-1. Распечатка данных – Помогает показать клиенту с помощью подробных цветных распечаток результат проделанной работы, а также объяснить о необходимости замены деталей и проведения ремонта. CodeLink™ – Быстро и легко перенастраивает датчик угла положения рулевого колеса в соответствии с требованиями OEM для корректной работы системы стабилизации курсовой устойчивости. Примечание: Требуется комплект 20-2813-1. TouchRemote™ – Позволяет с помощью Apple iPhone, iPod touch и iPad устройств дистанционно работать с WinAlign, обеспечивая: Отображение значений УУК в реальном времени; Контроль и управление WinAlign; Возможность просмотра регулировочных иллюстраций и изображений. Примечание: Требуется к-т 20-2477-1, WinAlign 11.1 и бесплатное приложение "HunterTouchRemote" с iTunes®. Компьютер должен быть оснащен Wi-Fi адаптером. Ассистент заезда - Позволяет безопасно и легко спозиционировать автомобиль на подъемнике/яме без посторонней помощи. Видеоинформация с веб-камеры выводится на экран монитора. Примечание: Требуется веб-камера. * - внешний вид может отличаться

Характеристики
Бренд
Hunter

Способ получения товара

Самовызов со склада

При налии склада в вашем городе есть возможность забрать товар самостоятельно, при согласовании время с менеджером.

Доставка курьером

Возможность доставки курьера зависит от транспортных характеристик товара, персональный менеджер помогает оформить доставку.

Доставка по России

Доставка производится по всей России, через транспортные компании! До терминала транспортной компании доставка бесплатная.

Произвести самостоятельный расчет доставки

Заказать Стенд развал-схождения Hunter WA310/20LE-421DT2 мобильный

По телефону: 8 (800) 600-42-05
По почте: shop@dorspecmash.ru

Телеграм.png    мессенджер макс    Ватсап.png   ВК.png

Для заказа товара через сайт, добавьте товары в корзину, затем совершите переход к оформлению товара и заполните все необходимые поля при оформлении, указав данные для обратной связи.

Менеджер по продажам перезвонит вам, чтобы уточнить данные и подтвердить заказ.

Скидки и акции

В интернет-магазине действуют персональные скидки покупателям при предоставлении конкурентных счетов, так же сезонные скидки на товары!

Полезная информация по оплате.

Ознакомиться со всем списком товаров можно в разделе "Каталог".

Отзывы на Стенд развал-схождения Hunter WA310/20LE-421DT2 мобильный

Отзывов еще никто не оставлял
Обратный звонок
Запрос успешно отправлен!
Имя *
Телефон *
Предзаказ
Предзаказ успешно отправлен!
Имя *
Телефон *
Добавить в корзину
Название товара
100 ₽
1 шт.
Перейти в корзину
Заявка

Я ознакомлен и согласен с условиями оферты и политики конфиденциальности.

Заказать консультацию

Я ознакомлен и согласен с условиями оферты и политики конфиденциальности.